BACK
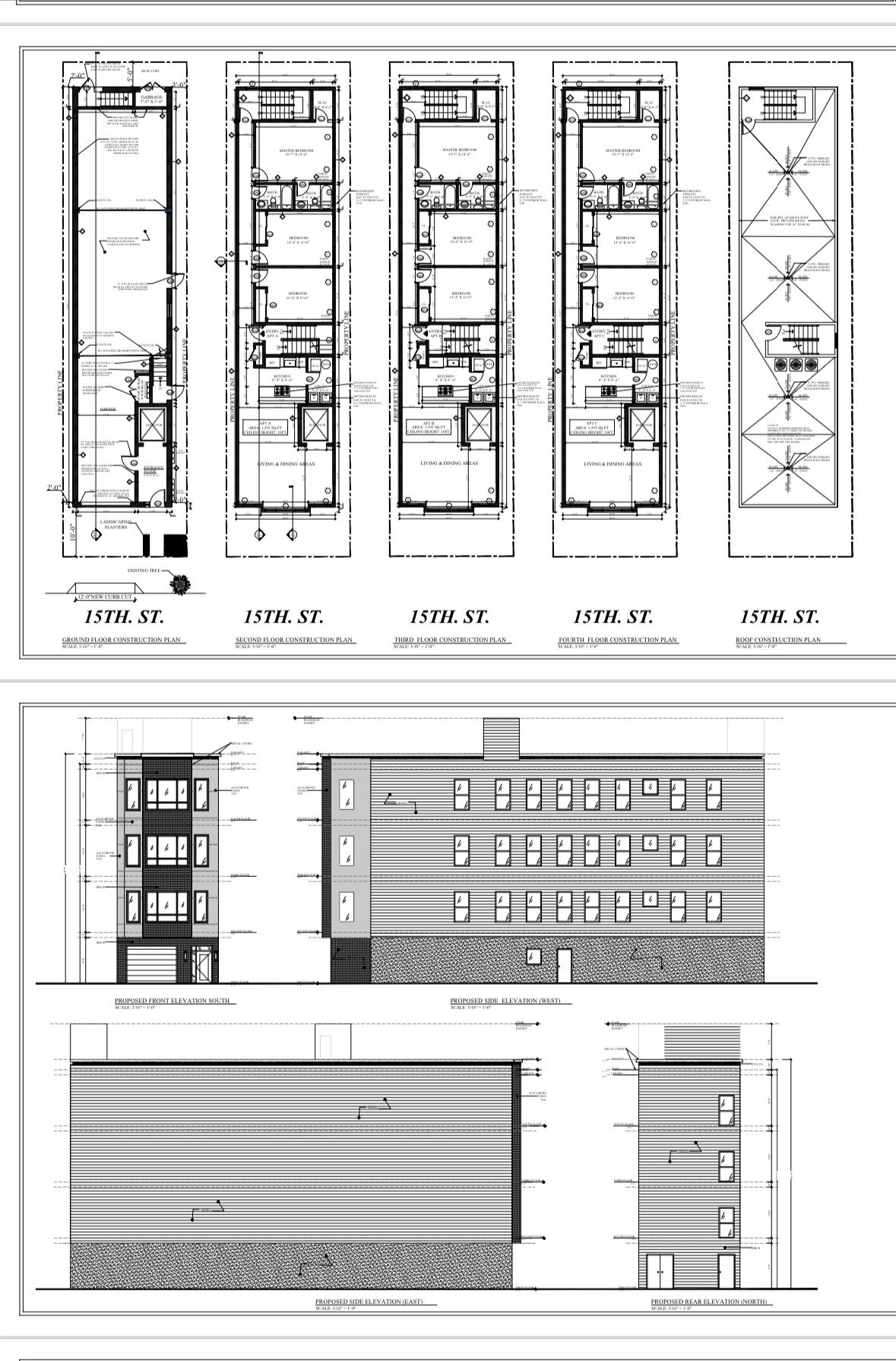
814 15th Street 1, Union City
$825,000
schedule a tour
request info
image1 image1
image2 image2