BACK
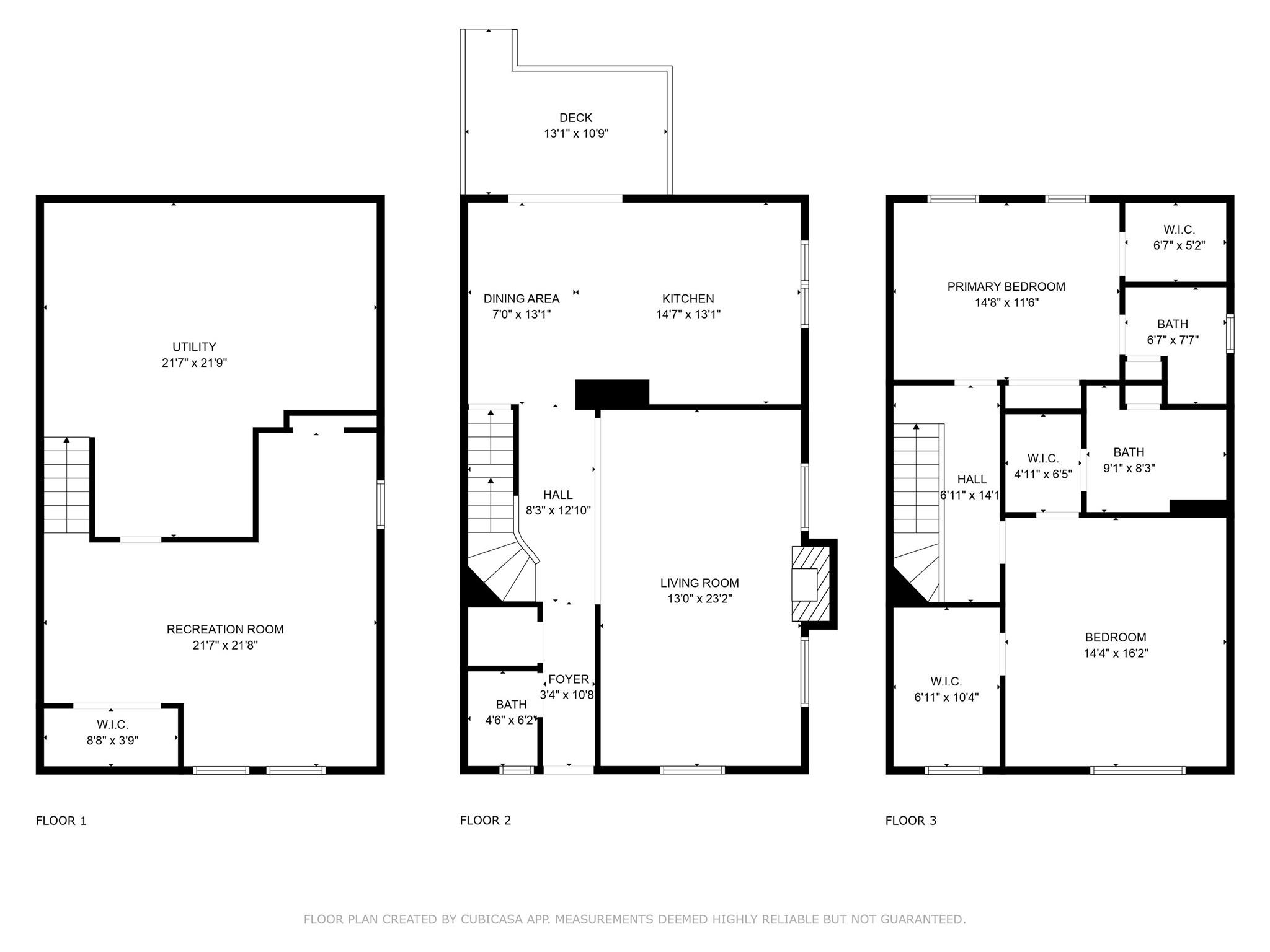
88 Somerset Drive, Suffern
$490,000
schedule a tour
request info